產品介紹
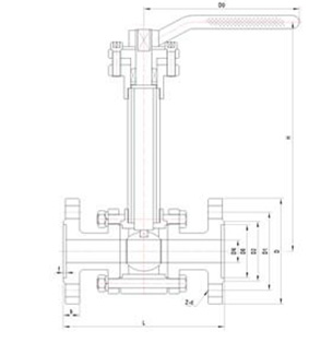
低溫球閥 DQ41F-16P/25P/40P
低溫閥門是指能夠在低溫工況下使用的閥門,通常把工作溫度低于-40℃的閥門稱為低溫閥門、低溫閥門包括低溫球閥、低溫閘閥、低溫截止閥、低溫蝶閥、低溫止回閥等,主要用于三十萬噸乙烯,液化天然氣等化工裝置上。輸出的液態低溫介質如乙烯、液氧、液氫、液化天然氣、液化石油產品等,不但易燃易爆,而且在升溫時要氣化,氣化時,體積膨脹數百倍。低溫閥門是石油化工、空氣分離、天然氣等工業不可缺少的重要設備之一,其質量的優劣決定著能否安全、經濟、持續地生產。
低溫球閥主要特點:
法蘭低溫球閥分為低溫浮動球閥和低溫固定球閥兩類,對于溫度高于-50℃,一般不采用長頸結構,對于溫度低于-50℃的球閥,頸部長度T一般為250mm,或根據我公司的設計和計算確定.低溫球閥主要用于輸出液態低溫介質如乙烯、液氧、液氫、液化天然氣、液化石油產品等,不但易燃易爆,而且在升溫時要氣化,氣化時,體積膨脹數百倍。
液化天然氣閥門的材料非常重要,材質不合格,會造成殼體及密封面的外漏或內漏;零部件的綜合機械性能、強度和鋼度滿足不了使用要求甚至斷裂。導致液化天然氣介質泄漏引起爆炸。因此,在開發、設計、研制液化天然氣閥門的過程中,材質是首要關鍵的問題。閥體、閥蓋采用:LCB(-46℃)、LC3(-101℃)、CF8(304)(-196℃
上海華通閥門公司所生產的低溫球閥經過特殊的低溫處理,將粗加工的零件置于冷卻介質中數小時(2-8小時),以釋放應力,確保材料的低溫性能,保證精加工尺寸,以防止閥門在低溫工況時,因溫度變化造成變形而導致的泄漏。
低溫球閥主要性能參數:
連接形式:法蘭式閥門材料:LCB、LC3、
工作溫度:-46℃、-196℃
適用介質:液化天然氣、乙烯、丙烯等
驅動方式:手動、傘齒輪傳動、電動
| 主要零部件材料: | |
| 閥體 |
0Cr18Ni9
|
| 球體 |
0Cr18Ni9
|
| 閥桿 |
0Cr18Ni9
|
| 填料、密封圈 |
PTFE
|


TEL:

E-mail us
PDF Download
Inquiry





